

THE MCHEATLEY MANOR
Lex and Mark are the proud new owners of a brand new build in Leeston, Christchurch.
"We met Lindy, next minute we were building then we were moving in!"
Opting to Design & Build their new home, Lex and Mark crafted a space that radiates warmth and hospitality, perfect for entertaining guests, family, and their beloved dog. Collaborating with the Classic Builders Canterbury team was a 'dream come true', resulting in a home that they are 'immensely proud of'. For Lex and Mark, the McHeatley Manor isn't just a house - it's a sanctuary where memories are made and cherished for a lifetime.
The Journey
No matter where you are based our dedicated team will work with you to achieve your new home dreams and provide a seamless process throughout. Our experienced teams pride themselves on working with you whether you are in person or in another part of the country.
Lex and Mark were based in Auckland when they made the decision to relocate back down south and call Christchurch home.
"To have done half of it remotely from Auckland is wild but you never would have known that we actually weren't here with the relationship that we had with Lindy and the team at Classic." Lex reflects, marveling at the seamless collaboration despite the physical distance.
From arranging meetings with designers to providing regular updates, we made the process effortless. With Tom, our Construction Manager, leading the way, Lex and Mark were able to witness their home taking shape through photos and videos, even from afar.


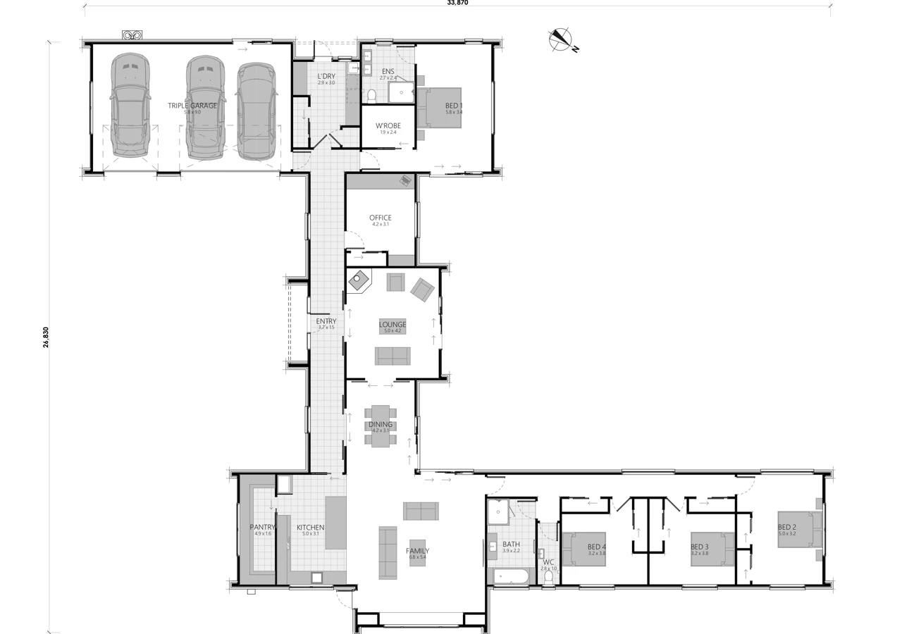
The Plan
Why Classic Builders
You’ve been dreaming about building your perfect home. You've already pictured what looks like and the amazing life you'll have there. What you need now is a builder who listens to and understands your vision, adheres to your budget and timeline, and has a solid reputation for delivering top-notch results. We believe we could be that builder for you. Why? Because for over 25 years, we've been bringing Kiwi dreams - just like yours - to life.
"I think what sets them apart is that they genuinely care. They're not just about the project; they care about us and what we're trying to achieve. I'll never forget when we finally got the keys to the house and I turned to Tom and said, 'This is going to be weird, but I feel like you've been the third person in our relationship for a while.'
That's the sign of a great relationship with your builder - you feel like you're in it together. It's not just about us having a dream; it's about them making it a reality in a way that shows they truly care about us and what we want to achieve."


Advice For Others
"I would like to think that we have come out of this almost as friends rather than a builder and a client. I think that's how strong our relationship was with them by the time we finished this build."
"They're a great bunch of people and if you build with them you will have a great experience."