Need to talk to our team?
Get in touch
Hunua Views, Ramarama
Hunua Views is a growing community designed with modern living in mind. Surrounded by rolling countryside yet minutes from the motorway, it’s the perfect balance of peaceful living and easy connection to Auckland and the wider region. With turnkey packages that include everything from inground tanks to completed landscaping, you’ll enjoy the confidence of a brand-new home with no hidden surprises.
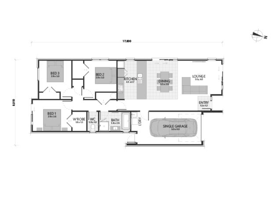
This thoughtfully designed 3 bed, 2 bath home delivers modern open plan living with an internal access garage on a 265m2 section.
• House size: 126.44m²
• Status: Ready now
This package includes everything you need to move in and enjoy:
• Heat pump • Full appliance package (e.g., oven, cooktop, rangehood, dishwasher) • Floor coverings throughout • Driveway, fencing, and letterbox • Hard and soft landscaping • Clothesline
Purchase with confidence – built for you by Classic Builders, one of New Zealand’s largest residential building companies. Over 25 years of building homes New Zealanders love to live in. This home is backed by a 10-year structural warranty, and two years’ defects cover – so you can enjoy your brand-new home with confidence.
