Need to talk to our team?
Get in touch
Greenhill Park, Hamilton
Greenhill Park is one of Hamilton’s most popular new communities, designed with modern living front of mind. With schools, shops, parks, and cafés all within walking distance, it’s a place that makes daily life easy. Add in a brand-new home built for today’s lifestyle, and Greenhill Park is the perfect choice for families, professionals, and anyone wanting convenience without losing that neighbourhood feel.
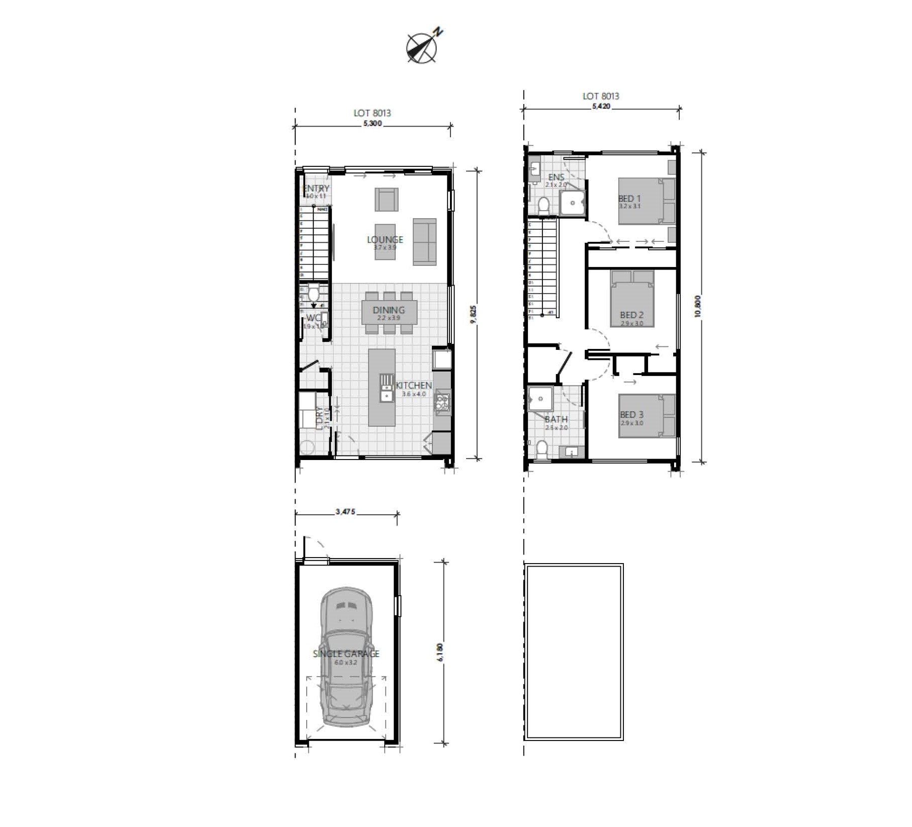
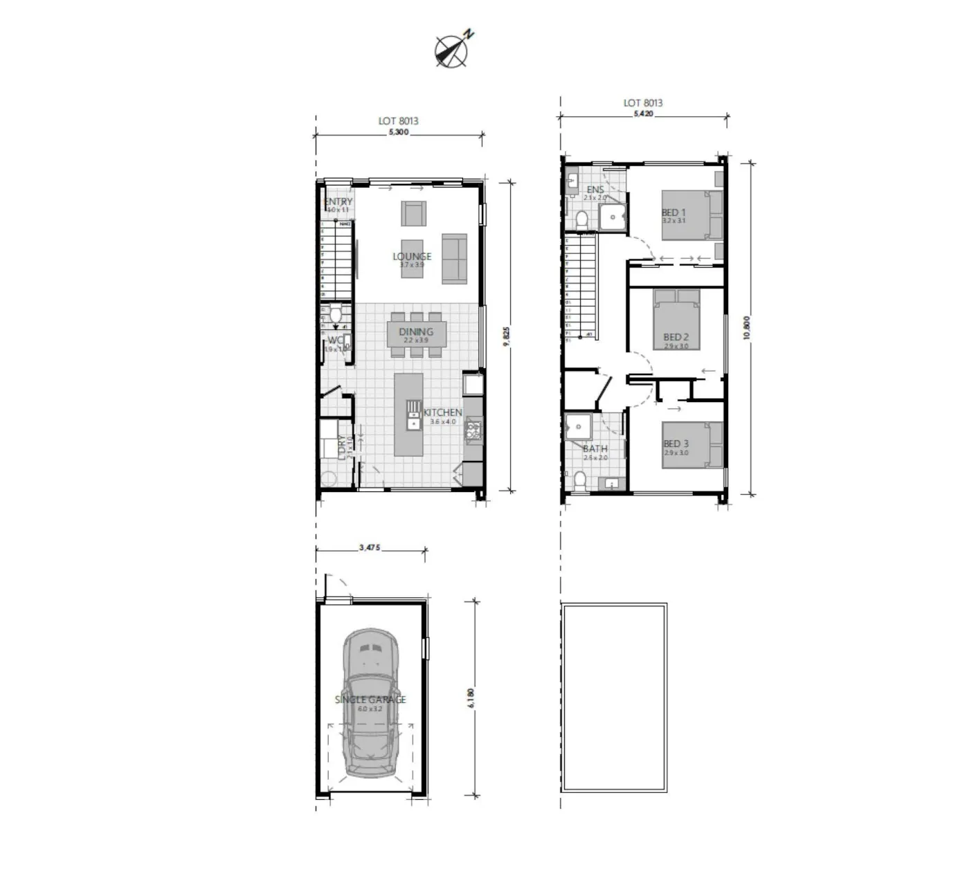
This thoughtfully designed 3 bed, 2 bath home delivers a modern and low-maintenance living on a 177m2 section. • House size: 137m²
• Status: Under construction
This package includes everything you need to move in and enjoy: • Heat pump • Full appliance package (e.g., oven, cooktop, rangehood, dishwasher) • Floor coverings throughout • Driveway, fencing, and letterbox • Hard and soft landscaping • Clothesline
Built by Classic Builders Purchase with confidence – built for you by Classic Builders, one of New Zealand’s largest residential building companies. Over 25 years of building homes New Zealanders love to live in. This home is backed by a 10-year structural warranty, and two years’ defects cover – so you can enjoy your brand-new home with confidence.
