Need to talk to our team?
Get in touch
Discover Glenbervie Park, Whangārei
Nestled close to Whangārei Falls, the Glenbervie Pine Forest, and the Tutukaka Coast, Glenbervie Park is where lifestyle meets convenience. This thoughtfully planned community has walking and cycle paths, green links, and a welcoming feel that’s perfect for first home buyers, families, or those looking to downsize. With a range of modern home designs available, you’ll find an easy way into a brand-new home in one of Whangārei’s most exciting developments.
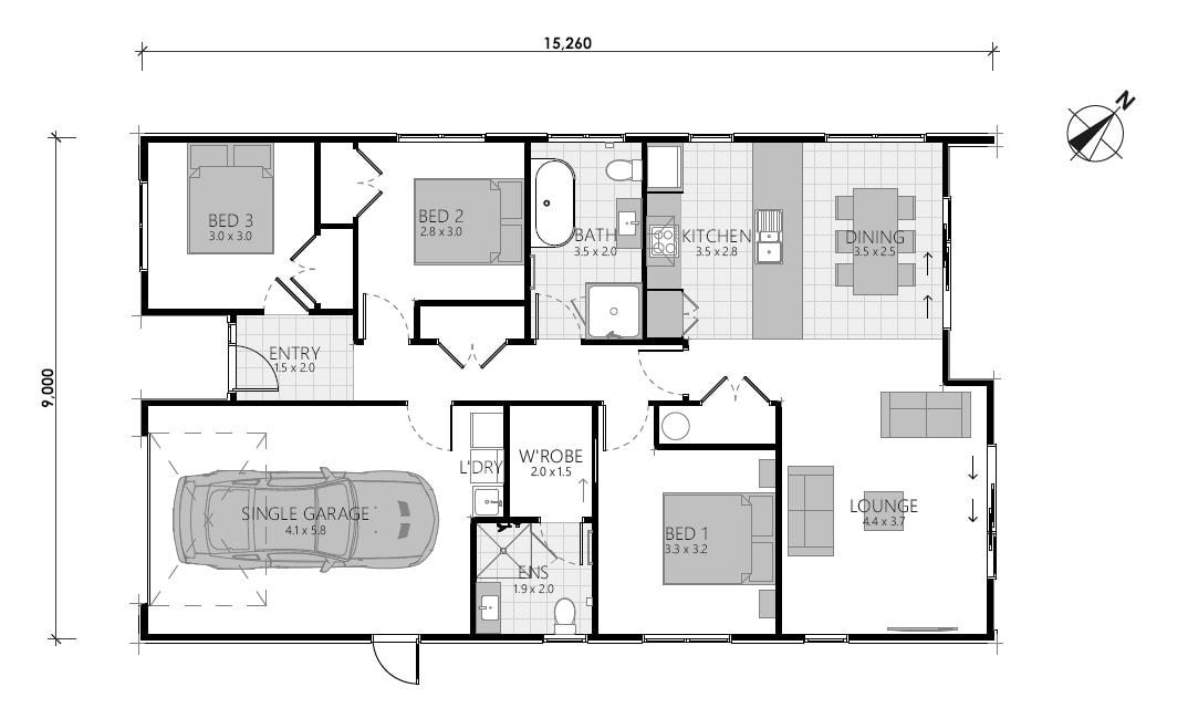
This thoughtfully designed 3 bed, 2 bath home delivers modern open-plan living on a 340m2 section.
• House size: 135m²
• Status: Ready now
This package includes everything you need to move in and enjoy:
• Heat pump • Full appliance package (e.g., oven, cooktop, rangehood, dishwasher) • Floor coverings throughout • Driveway, fencing, and letterbox • Hard and soft landscaping • Clothesline
Purchase with confidence – built for you by Classic Builders, one of New Zealand’s largest residential building companies. Over 25 years of building homes New Zealanders love to live in. This home is backed by a 10-year structural warranty, and two years’ defects cover – so you can enjoy your brand-new home with confidence.
