Need to talk to our team?
Get in touch
East Quarter, Papamoa
In the heart of Papamoa’s fast-growing eastern corridor, East Quarter is all about modern living with the beach lifestyle close by. Schools, shops, and local cafés are just around the corner, while the coast is only minutes away. With brand-new homes designed for today’s way of living, East Quarter is a smart choice for families, professionals, and investors alike.
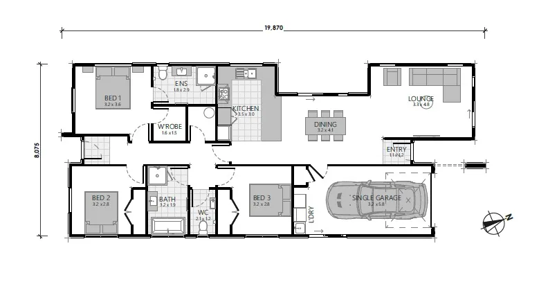
This thoughtfully designed 3 bed, 2 bath home delivers an open- plan living on a 308m2 section.
• House size: 140.3m²
• Status:
This package includes everything you need to move in and enjoy:
• Heat pump • Full appliance package (e.g., oven, cooktop, rangehood, dishwasher) • Floor coverings throughout • Driveway, fencing, and letterbox • Hard and soft landscaping • Clothesline
Purchase with confidence – built for you by Classic Builders, one of New Zealand’s largest residential building companies. Over 25 years of building homes New Zealanders love to live in. This home is backed by a 10-year structural warranty, and two years’ defects cover – so you can enjoy your brand-new home with confidence.
