Need to talk to our team?
Get in touch
Maea Fields, Matamata Set against the backdrop of the Kaimai Ranges, Maea Fields offers modern living in the heart of Matamata. Just minutes from local schools, shops, and cafés, this neighbourhood makes everyday life easy while keeping that relaxed town feel. With brand-new homes designed for comfort and style, Maea Fields is the perfect place to put down roots in a growing community.
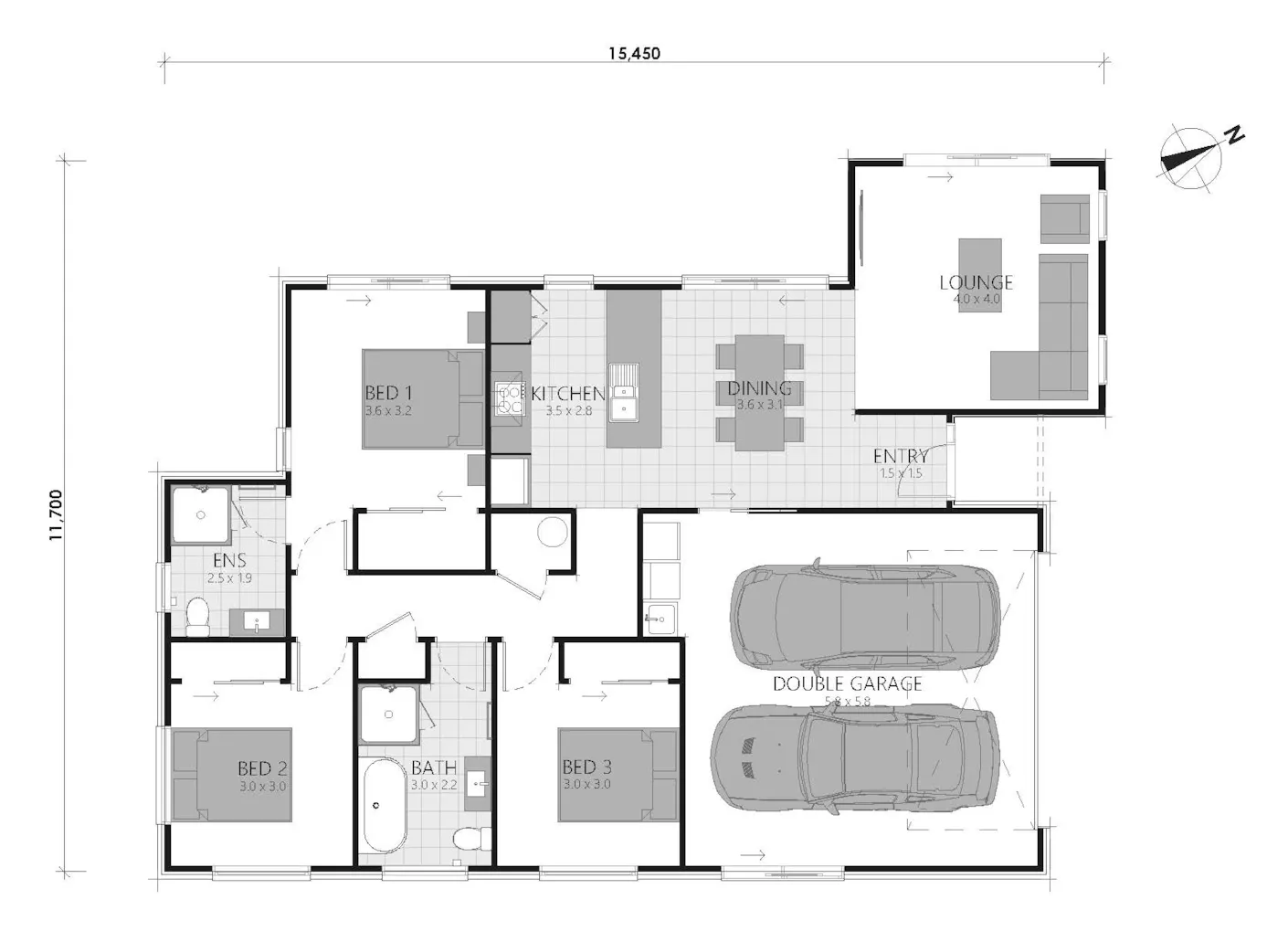
This thoughtfully designed 3 bed, 2 bath home delivers open-plan living, on a 454m2 section.
• House size: 147.4m²
• Status: Ready Now
This package includes everything you need to move in and enjoy: • Heat pump • Full appliance package (e.g., oven, cooktop, rangehood, dishwasher) • Floor coverings throughout • Driveway, fencing, and letterbox • Hard and soft landscaping • Clothesline
Purchase with confidence – built for you by Classic Builders, one of New Zealand’s largest residential building companies. Over 25 years of building homes New Zealanders love to live in. This home is backed by a 10-year structural warranty, and two years’ defects cover – so you can enjoy your brand-new home with confidence.
